🔴 Live Construction Site 👷♀️
Follow along as we show you how our custom homes are built to raise industry standards!
Watch as we pursue our mission of creating lasting memories for the families we serve.

At Sanctified Homes, we believe every home is a reflection of the family's dreams and long-term vision. Little House on the Bend is no exception. This isn’t just a house; it’s a place where cherished moments will unfold, built with care and creativity for a lifetime of memories.

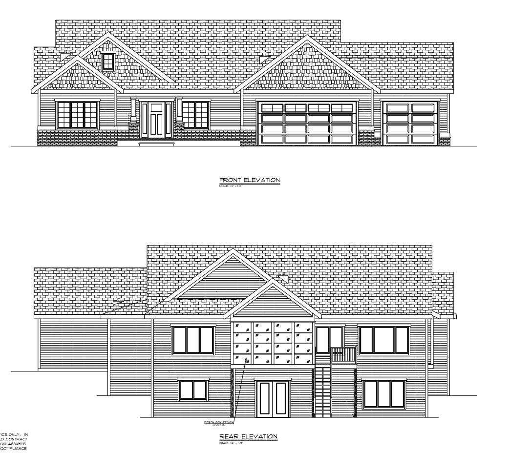
Little House on the Bend may sound quaint, but at 2,000 square feet, it's anything but small. This one-story home combines thoughtful design with room to grow, ensuring it meets the needs of today while preparing for tomorrow’s possibilities. Here’s what makes it special:
Here are a few of the things we're excited about:
Spacious Layout: 2,000 sqft of carefully designed living space for a growing family
Entertainment Ready: Wet bar in the fully walkout basement, perfect for hosting friends and family
Extended Garage: Extra space for storing the family boat or additional vehicles
Future-Proof: Thoughtfully designed with future expansion in mind, especially in the basement area
Stunning Views: Creative landscaping and architecture designed for a walkout basement with beautiful views

Don't wait any longer to start working with us to build your home & enjoy all of life's precious moments.
OR
CALL/TEXT NOW

Honesty is always the best policy, and this is the policy we swear by. We aim to be as transparent as possible with our clients when building their homes.
We have no hidden fees or surprises.
We disclose every invoice and bid because we have nothing to hide.
We are upfront about all costs, including the price or materials and labor costs, so you can trust every dollar of the process.
Our team has over 25 years of experience in construction and design, so we know how to make your dream home a reality.
Over 200 homes build with our combined expertise!
25 years experience in Parade of Homes
Builder Of the Year with Madison Area Builders Association
We are committed to raising the standards in the industry. At our core, we value transparency, trust, and communication. Our mission is not to only give you a modern, efficient home, but a place to experience life with the ones you love the most.
We serve all of Dane County
Copyright Sanctified Homes & Construction.
Designed with love by Kismet Ideas.