Everything we do centers around creating you a truly custom home to exceed your desires.

5 BED. 4.5 BATH. 4440 SQFT.
This masterpiece beckons you with its more than 4,000 square feet of pure opulence. But hold onto your hats, because this isn't just any home — it's a portal to a world of imagination and joy!
Some standout features of this home:
Nestled against a lush and vibrant park
Award-winning architecture & building quality
Tons of living space!
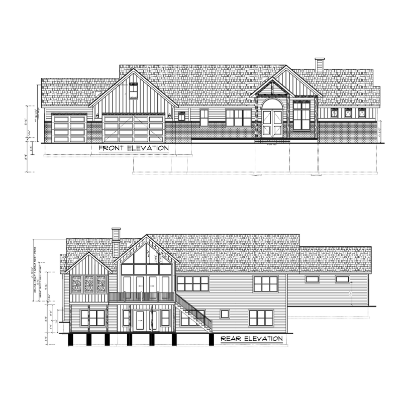
4 BED. 3 BATH. 2503 SQFT.
Nestled on Hoel Ave, this custom home is a masterpiece of personalized design, blending modern elegance with a touch of local charm.
Some standout features of this home:
Luxurious 6 Foot Soaking Tub
Vaulted Ceilings
Fitness Recreation Room
4 BED. 2.5 BATH. 2165 SQFT.
For this family, we timed the build of this house with selling their current home. We designed this home with bedroom spaces specifically for their kids, while creating a massive Great Room to bring everyone together for meals and memories.
Some standout features of this home:
18 Foot Tall Great Room ceilings!
Full Walkout Basement
First floor Master Bedroom
3 BED. 2.5 BATH. 2121 SQFT.
This home backs up to the park and Splash Pad at Nordic Ridge. This home provides and amazing opportunity to enjoy green space, the park, and this walkable neighborhood.
Some standout features of this home:
Expansive Living + Dining + Kitchen space
Upper Floor Bedrooms and Laundry
No Neighbors Out Their Backyard
4 BED. 3 BATH. 2361 SQFT.
This unique home was built on our client's land, overlooking a beautiful lake. We actually had quite the experience building this house, and replacing the original farm house on the property.
Some standout features of this home:
Over 50 Foot Rear Deck
Built to Maximize Lake Views
Abundant Kitchen Cabinets






What I personally love the most was the communication, response time and attention to detail of my dream throughout the project. There was never any unsettling gut feeling or the awfully dreaded "what if" questions floating around in my head. I felt completely accommodated the whole time. And to see the final product was more than I coulda hoped for. Definitely thumbs up. I couldn't have chosen a better company to go with.
- Chris Johns
These guys did awesome work and their customer service was one of the best I have received.
- Chris Fields
TJ and his team always go above and beyond! Their knowledge, in my opinion, far exceeds anyone else I have worked with. Not only are they personable, and friendly, but they have the work ethic to go with it. There is no one else I would rather work with, and highly recommend them to all of my friends and family.
- Valerie Nyenhuis





Step-by-step home building phases — from clearing land to final touches
Lot selection & budgeting strategies to avoid hidden costs
Room-by-room material and design tips
Checklists most first-time builders forget
Future-proofing advice (solar, EVs, smart home features & more)

Honesty is always the best policy, and this is the policy we swear by. We aim to be as transparent as possible with our clients when building their homes.
We have no hidden fees or surprises.
We disclose every invoice and bid because we have nothing to hide.
We are upfront about all costs, including the price or materials and labor costs, so you can trust every dollar of the process.
Our team has over 25 years of experience in construction and design, so we know how to make your dream home a reality.
Over 200 homes build with our combined expertise!
25 years experience in Parade of Homes
Builder Of the Year with Madison Area Builders Association
We are committed to raising the standards in the industry. At our core, we value transparency, trust, and communication. Our mission is not to only give you a modern, efficient home, but a place to experience life with the ones you love the most.
We serve all of Dane County
Copyright Sanctified Homes & Construction.
Designed with love by Kismet Ideas.